
제품설명
분류
| 품명 |
길이 |
설계하중(kgf) |
강관부 길이(m) |
용도 및 기능 |
물품분번호 |
비고 |
| 상부 |
하부 |
| 강관주(슬립형) |
5m |
150 |
2.0 |
3.0 |
콘크리트 전주 건식이 난이 한 지역에 사용 |
5975-062 |
114.3x3.2(상단) |
| 5975-062 |
139.8x3.6(하단) |
| 6m |
150 |
2.0 |
3.5 |
5975-062 |
114.3x3.2(상단) |
| 5975-062 |
139.8x3.6(하단) |
| 7m |
120 |
3.0 |
4.0 |
|
114.3x2.3(상단) |
|
139.8x3.0(하단) |
| 150 |
3.0 |
4.0 |
5975-062 |
114.3x3.2(상단) |
| 5975-062 |
139.8x3.6(하단) |
| 200 |
3.0 |
4.0 |
5975-062 |
114.3x4.0(상단) |
| 5975-062 |
139.8x5.0(하단) |
| 250 |
3.0 |
4.0 |
5975-062 |
139.8x3.6(상단) |
| 5975-062 |
165.2x5.0(하단) |
| 8m |
250 |
3.0 |
5.0 |
5975-062 |
139.8x3.6(상단) |
| 5975-062 |
165.2x5.0(하단) |
| 강관주(U)형 |
7m |
200 |
3.0 |
4.0 |
|
139.8x3.6(상단) |
|
156.0x3.6(하단) |
부품 및 재료
| 부품명 |
재 질 |
비 고 |
| 슬립형/U 형 공통 |
본체 |
일반구조용 탄소강관 |
KS D 3566 (STK 400) |
| 플랜지 |
압연강재 |
KS D 3503 (SS 400) |
| PA 6(Polyamide 6) |
7m-120kgf 한 적용 |
| 슬립연결볼트 |
6각볼트, 너트 |
KS B 1002, 1012 |
| 상/하부 연결관 |
PA 6(Polymide 6) |
7m-120kgf 한 적용 |
| U 형 |
케이블보호용덮개 |
압연강재 |
KS D 3503 (SS 400) |
| 안전발판 |
압연강재 |
구매시 지정 |
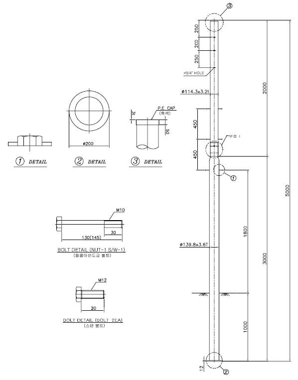
도면
| 강관주 |
 |